
用途:
4-79系列離心風機可以當作普通的廠房和建筑的屋內通風以及換氣的裝置,也可以和空調凈化設備一起使用。氣體中不可以有粘性的東西,塵土還有硬質的顆粒物質含量不能超過150mg/m3。氣體的溫度在不高于80℃的情況下,該氣體可以作為輸入氣體,也可以是輸出氣體。
型式:
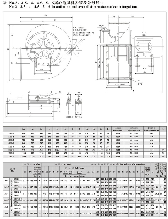
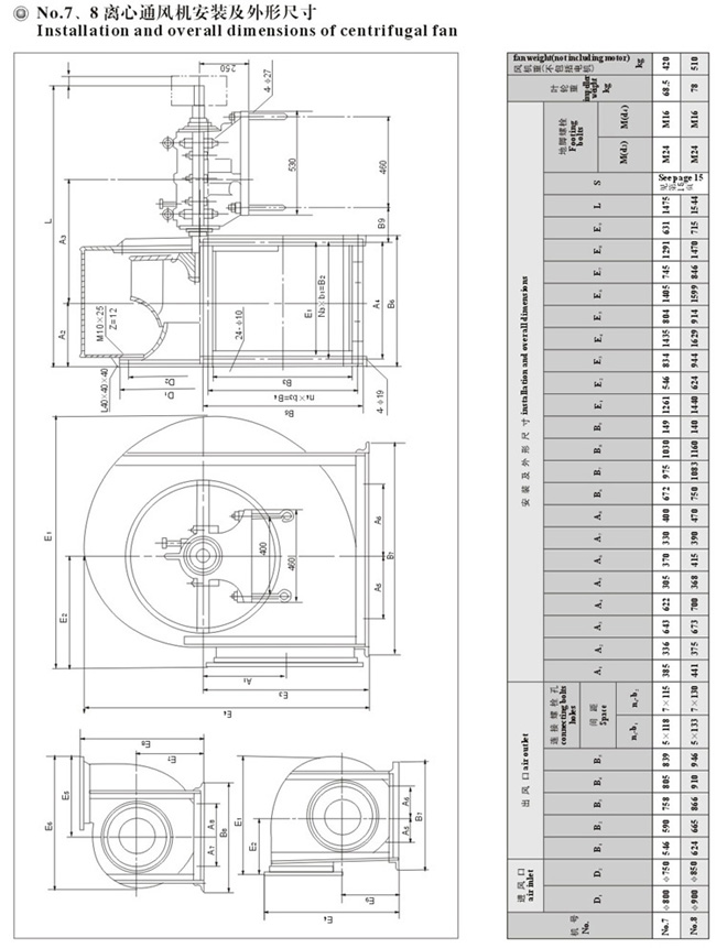
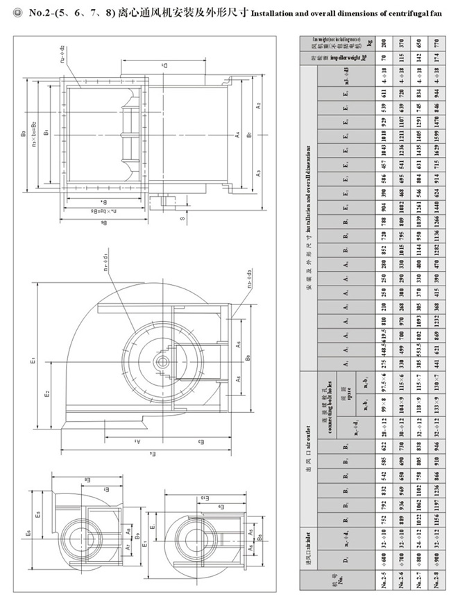
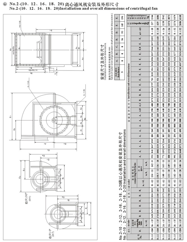
4-79系列離心風機產品規格從3#~20#共有20個機號。3-6#為A式傳動,出風口角度調整范圍0°~225°。間隔為45°;7~8#為C式傳動,10~20#為E式傳動,出風口角度均可制成所需固定角度;5~20#可制成雙吸風機。
結構:
風機主要由葉輪、機殼、集風器、軸承箱、軸承座及傳動部分所組成。
葉輪由后傾圓弧型葉片、曲線型輪蓋和平板型輪盤及輪轂組成,并經過動、靜平衡校正,具有良好空氣動力性能和運轉的平穩可靠性。
機殼采用優質鋼板蝸線型焊接而成,≤12#機殼為整體式,≥14#的機殼沿中分水平面分為兩半,由螺栓連接。
主軸采用優質碳鋼制成,經調質處理在設計上有可靠的安全性和抗疲勞性。
集風器、輪蓋均以拉伸工藝一次成型,具有光滑流線型表面。
軸承箱、座為優質鑄鐵件加工而成,配用調心軸承,采用機油或油脂潤滑。
三角帶傳動系統,按所需性能優化配警。(三角帶一般選用國產,亦可根據用戶特殊選用進口產品)。單機三角帶長度按樣本參數。
訂貨時應標注清楚風機型號、規格、用途、傳動方式、流量、全壓(靜壓)旋轉方向及風口角度,以及電動機的型號、極數、規格等,如有特殊要求訂貨時提出。本公司保留樣本更改權,就不另行通知。


















