
概述:
GDF系列的離心式管道風機,這個風機的葉輪選用了前傾斜形式的多翼離心葉輪,單側的吸風。風機設計的是水平進出,方形的進出風口可以直接連接到風管上。本機采用的風機電機為空調專用電機,噪聲小,運行穩定,使用壽命長。
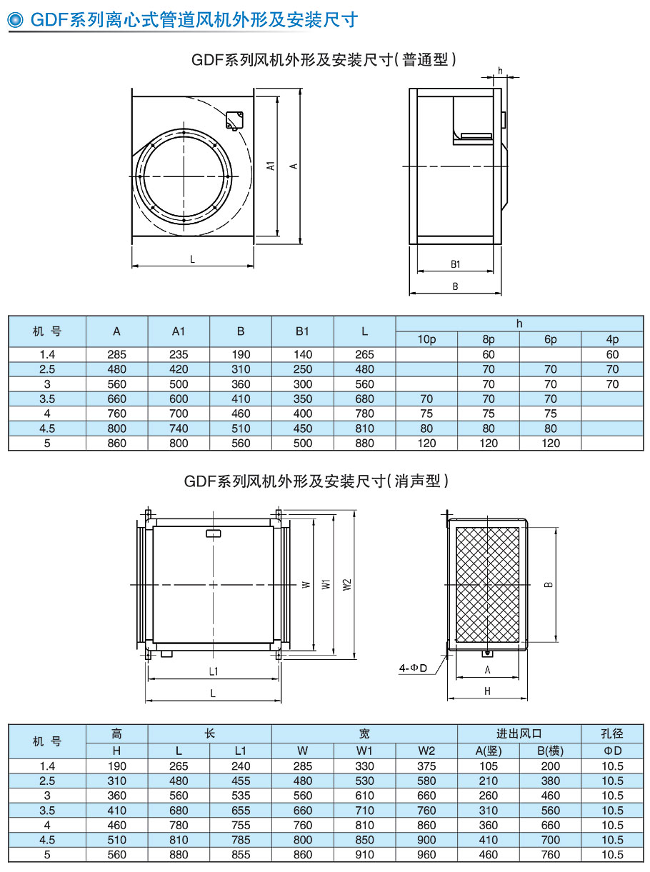
風機按直徑分為140~500mm十六種規格系列風量為130~7280m3/h,全壓為45~810Pa。
為適應不同場所噪聲的要求,分為:
普通型:其全部材料為鍍鋅鋼板通過咬口成形;
消聲型:其風機部分為鍍鋅鋼板通過咬口成形。
箱體箱板采用彩色涂板,內部加了消聲的材料,框架采用的是鋁合金型材,進出風口設置過濾網。
GDF系列離心式管道風機工作條件:
工作溫度:-20~+40℃;
濕度:小于90%;
介質條件:空氣(含塵量不超過100mg/m3);
工作電源:三相380V/50Hz(部分型號)
單相220V/50Hz(部分型號)。
GDF系列離心式管道風機應用:
風機廣泛應用于賓館、飯店、會議室、辦公樓、公共場所、商場等通風換氣之用。
GDF系列離心式管道風機配置:
標準配置
●葉輪; ●外轉子電機; ●機殼(蝸殼 集流器、電機支架);
●過濾網(僅消聲型); ●箱體(僅消聲型)。
備選件及附件(訂貨時說明是否購買)
※減振設備; ※控制箱; ※消聲器; ※對接法蘭。
GDF系列離心式管道風機加工工藝:
風機葉輪以及機殼都是選用的高品質的鍍鋅鋼板材質,選用全模具生產加工通過咬口來成形。葉輪的通過靜、動平衡校精度不超過 G5.6級。
消聲型風機箱板經過了數控折彎機進行折成邊之后形成的,采用自攻螺釘還用鋁合金的型材鏈接構成的。

